デザイナーズマンションの賃貸物件一覧
建物 443 棟
部屋 915 室
表示棟数:
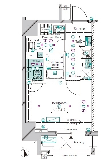
ザ・パークワンズ品川戸越 【05月17日更新】
シーフォルム浅草2 【05月17日更新】
お気に入りに追加しました
お気に入りを解除しました
検索条件を保存しました
会社情報
分譲賃貸サーチ
(株式会社エスティリンク)
営業時間:10:00~19:00
定休日:年中無休
おすすめの物件
-
更新 05/17
- 南青山マスターズハウス
- 空室:1 部屋
- 面積:74.41㎡
東京メトロ千代田線
『乃木坂駅』徒歩7分
間取り:3LDK
賃料:52.0万円
-
更新 05/17
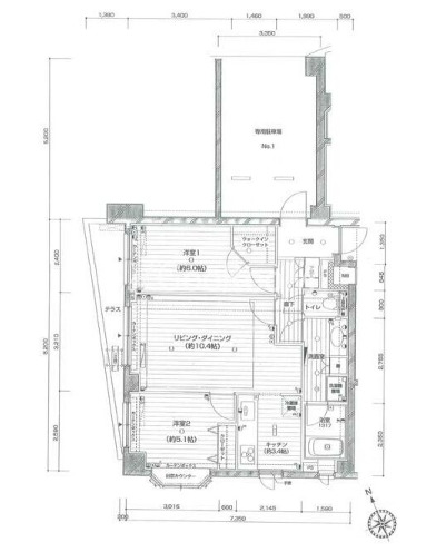
- ローレルタワールネ浜松町
- 空室:5 部屋
- 面積:25.73㎡〜87.94㎡
JR山手線
『浜松町駅』徒歩10分
間取り:1R〜2LDK
賃料:14.7万円〜63.0万円
-
更新 05/17
- プレミストタワー白金高輪
- 空室:2 部屋
- 面積:51.23㎡〜84.48㎡
都営三田線
間取り:1LDK〜2LDK
賃料:38.8万円〜69.0万円
-
更新 05/17
- シティタワー白金
- 空室:2 部屋
- 面積:42.40㎡〜85.26㎡
東京メトロ日比谷線
『広尾駅』徒歩11分
間取り:1LDK〜3LDK
賃料:24.5万円〜60.0万円
-
更新 05/17
- ザ・パークハウス愛宕虎ノ門
- 空室:3 部屋
- 面積:54.80㎡〜64.52㎡
東京メトロ日比谷線
『神谷町駅』徒歩3分
間取り:1SLDK〜2LDK
賃料:40.0万円〜43.5万円
