東京都江東区の賃貸物件一覧
建物 76 棟
部屋 164 室
表示棟数:
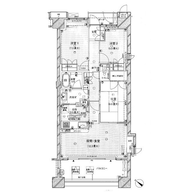
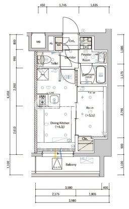
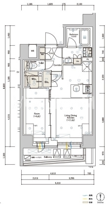
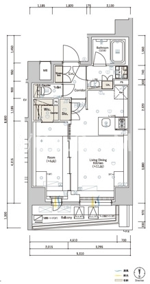
イーストゲートスクエア 【05月08日更新】
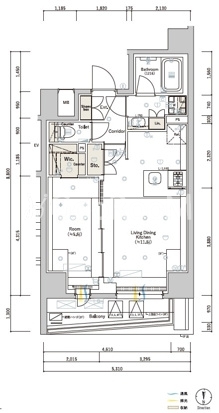
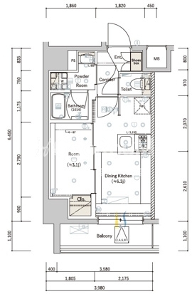
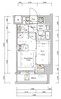
ガレリアグランデ 【05月08日更新】
スカイズタワー&ガーデン 【05月08日更新】
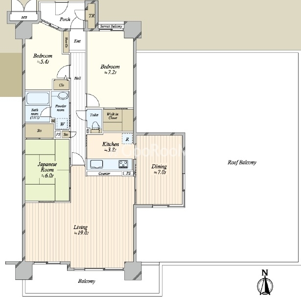
シティタワーズ豊洲ザ・シンボル 【05月08日更新】
ブリリアマーレ有明 【05月08日更新】
パークホームズ豊洲ザ・レジデンス 【05月08日更新】
お気に入りに追加しました
お気に入りを解除しました
検索条件を保存しました
会社情報
分譲賃貸サーチ
(株式会社エスティリンク)
営業時間:10:00~19:00
定休日:年中無休
おすすめの物件
-
更新 05/08
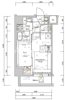
- オープンレジデンシア麻布六本木
- 空室:1 部屋
- 面積:40.43㎡
東京メトロ南北線
『六本木一丁目駅』徒歩5分
間取り:1LDK
賃料:27.0万円
-
更新 05/08
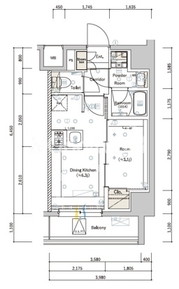
- グランスイート麻布六本木
- 空室:1 部屋
- 面積:25.47㎡
東京メトロ南北線
『六本木一丁目駅』徒歩4分
間取り:1K
賃料:19.6万円
-
更新 05/08
- シティタワー品川
- 空室:3 部屋
- 面積:82.77㎡
JR山手線
間取り:3LDK
賃料:37.8万円〜40.0万円
-
更新 05/08
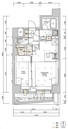
- レグノ・プレミア高輪
- 空室:1 部屋
- 面積:48.68㎡
JR山手線
間取り:1LDK
賃料:24.5万円
-
更新 05/08
- シティハウス南麻布一丁目
- 空室:1 部屋
- 面積:54.08㎡
東京メトロ南北線
『麻布十番駅』徒歩5分
間取り:1LDK
賃料:38.0万円
