東京都目黒区の賃貸物件一覧

建物 67 棟 部屋 110
表示棟数:

フジトピア目黒祐天寺 【05月01日更新】

分譲賃貸

初期費用クレジットカード決済可能

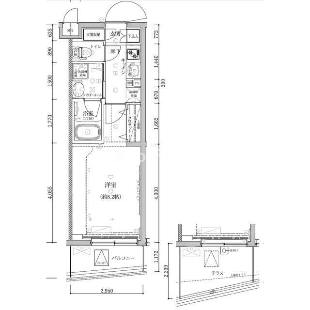
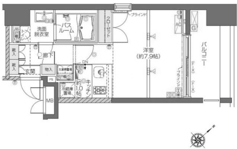
賃料 28.0万円 管理費 15,000円
間取り 3LDK 面積 68.44㎡
住所 東京都目黒区上目黒5-13-8 築年月 1996年7月
交通

東京メトロ日比谷線中目黒駅』徒歩14

東急田園都市線池尻大橋駅』徒歩14

東急東横線祐天寺駅』徒歩11

間取り図 階数 間取り 面積 賃料 管理費 敷金 礼金 お気に入り お問合わせ
3LDK 2階 3LDK 68.44㎡ 28.0万円 15,000円 2.0ヶ月 1.0ヶ月
全ての空室情報を表示 その他-2 閉じる
建物 67棟中  1~1棟表示
お気に入りに追加しました
お気に入りを解除しました
検索条件を保存しました
現在の検索条件
エリア
東京都目黒区
こだわりの条件
市区町村 東京都目黒区
会社情報
分譲賃貸サーチ

分譲賃貸サーチ
(株式会社エスティリンク)

営業時間:10:00~19:00

定休日:年中無休

0120-868-666
おすすめの物件