東京都台東区の賃貸物件一覧

建物 78 棟 部屋 123
表示棟数:

ライオンズ蔵前レジデンス 【04月21日更新】

分譲賃貸

初期費用クレジットカード決済可能

賃料 16.5万円 管理費 15,000円
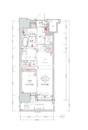
間取り 1LDK 面積 35.08㎡
住所 東京都台東区蔵前2-5-5 築年月 2012年12月
交通

都営浅草線蔵前駅』徒歩1

都営大江戸線蔵前駅』徒歩4

JR中央・総武線浅草橋駅』徒歩11

間取り図 階数 間取り 面積 賃料 管理費 敷金 礼金 お気に入り お問合わせ
1LDK 5階 1LDK 35.08㎡ 16.5万円 15,000円 1.0ヶ月 1.0ヶ月
全ての空室情報を表示 その他-2 閉じる
建物 78棟中  14~14棟表示
お気に入りに追加しました
お気に入りを解除しました
検索条件を保存しました
現在の検索条件
エリア
東京都台東区
こだわりの条件
市区町村 東京都台東区
会社情報
分譲賃貸サーチ

分譲賃貸サーチ
(株式会社エスティリンク)

営業時間:10:00~19:00

定休日:年中無休

0120-868-666
おすすめの物件