東京都台東区の賃貸物件一覧

建物 79 棟 部屋 125
表示棟数:

アトラス浅草 【04月22日更新】

分譲賃貸

仲介手数料無料

初期費用クレジットカード決済可能

賃料 25.0万円 管理費 0円
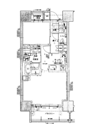
間取り 1LDK 面積 54.27㎡
住所 東京都台東区西浅草3-24-5 築年月 2014年6月
交通

つくばエクスプレス浅草駅』徒歩6

東京メトロ銀座線田原町駅』徒歩10

東京メトロ日比谷線入谷駅』徒歩11

間取り図 階数 間取り 面積 賃料 管理費 敷金 礼金 お気に入り お問合わせ
1LDK 13階 1LDK 54.27㎡ 25.0万円 - 1.0ヶ月 1.0ヶ月
全ての空室情報を表示 その他-2 閉じる
建物 79棟中  21~21棟表示
お気に入りに追加しました
お気に入りを解除しました
検索条件を保存しました
現在の検索条件
エリア
東京都台東区
こだわりの条件
市区町村 東京都台東区
会社情報
分譲賃貸サーチ

分譲賃貸サーチ
(株式会社エスティリンク)

営業時間:10:00~19:00

定休日:年中無休

0120-868-666
おすすめの物件