東京都台東区の賃貸物件一覧

建物 79 棟 部屋 125
表示棟数:

シーフォルム入谷 【04月22日更新】

分譲賃貸

仲介手数料無料

ペット相談

初期費用クレジットカード決済可能

賃料 10.2万円 管理費 18,000円
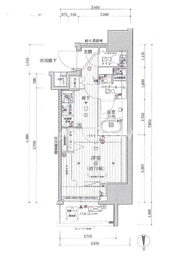
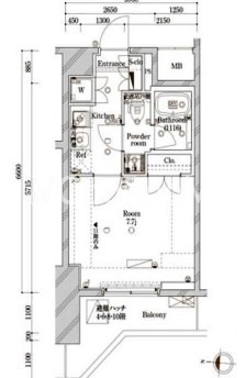
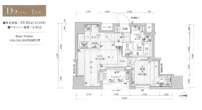
間取り 1K 面積 25.18㎡
住所 東京都台東区千束2-34-3 築年月 2012年1月
交通

東京メトロ日比谷線入谷駅』徒歩7

東京メトロ日比谷線三ノ輪駅』徒歩10

つくばエクスプレス浅草駅』徒歩10

間取り図 階数 間取り 面積 賃料 管理費 敷金 礼金 お気に入り お問合わせ
1K 7階 1K 25.18㎡ 10.2万円 18,000円 1.0ヶ月 1.0ヶ月
全ての空室情報を表示 その他-2 閉じる
建物 79棟中  46~46棟表示
お気に入りに追加しました
お気に入りを解除しました
検索条件を保存しました
現在の検索条件
エリア
東京都台東区
こだわりの条件
市区町村 東京都台東区
会社情報
分譲賃貸サーチ

分譲賃貸サーチ
(株式会社エスティリンク)

営業時間:10:00~19:00

定休日:年中無休

0120-868-666
おすすめの物件