小田急小田原線の賃貸物件一覧

レジデンスヒルズ神山町 【05月02日更新】

分譲賃貸

ペット相談

初期費用クレジットカード決済可能

賃料 38.0万円 管理費 20,000円
間取り 2SLDK 面積 65.92㎡
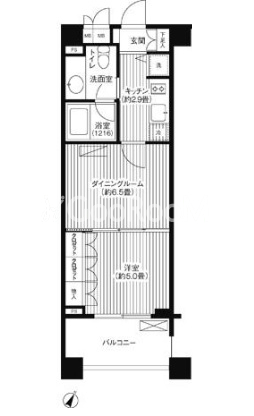
住所 東京都渋谷区神山町38-14 築年月 2005年10月
交通

東京メトロ千代田線代々木公園駅』徒歩9

小田急小田原線代々木八幡駅』徒歩10

JR山手線渋谷駅』徒歩17

間取り図 階数 間取り 面積 賃料 管理費 敷金 礼金 お気に入り お問合わせ
2SLDK 4階 2SLDK 65.92㎡ 38.0万円 20,000円 2.0ヶ月 1.0ヶ月
全ての空室情報を表示 その他-2 閉じる
建物 39棟中  28~28棟表示
お気に入りに追加しました
お気に入りを解除しました
検索条件を保存しました
現在の検索条件
路線
小田急小田原線
こだわりの条件
路線 小田急小田原線
会社情報
分譲賃貸サーチ

分譲賃貸サーチ
(株式会社エスティリンク)

営業時間:10:00~19:00

定休日:年中無休

0120-868-666
おすすめの物件