賃貸物件一覧

建物 1,311 棟 部屋 2,609
表示棟数:

アルテシモ アスタ 【04月18日更新】

分譲賃貸

仲介手数料無料

敷金ゼロ

ペット相談

初期費用クレジットカード決済可能

賃料 10.0万円 管理費 10,000円
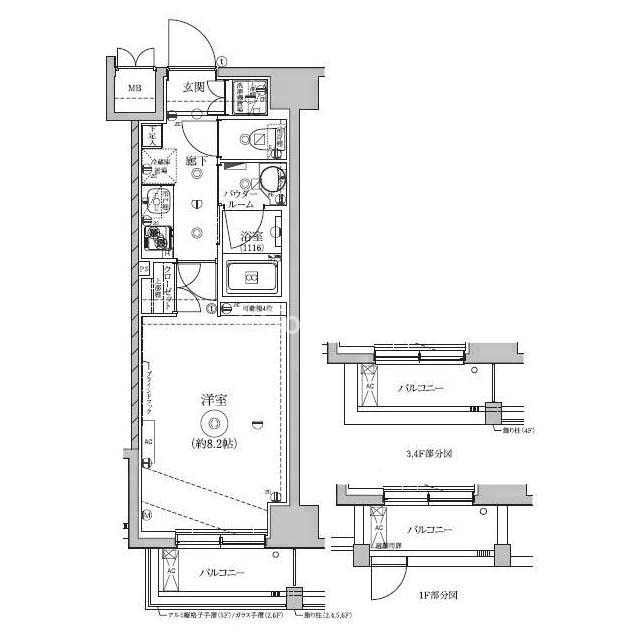
間取り 1K 面積 25.51㎡
住所 東京都世田谷区駒沢5-21-8 築年月 2016年3月
交通

東急田園都市線駒沢大学駅』徒歩13

間取り図 階数 間取り 面積 賃料 管理費 敷金 礼金 お気に入り お問合わせ
1K 2階 1K 25.51㎡ 10.0万円 10,000円 0.0ヶ月 1.0ヶ月
全ての空室情報を表示 その他-2 閉じる
建物 1,311棟中  1254~1254棟表示
お気に入りに追加しました
お気に入りを解除しました
検索条件を保存しました
現在の検索条件
こだわりの条件
会社情報
分譲賃貸サーチ

分譲賃貸サーチ
(株式会社エスティリンク)

営業時間:10:00~19:00

定休日:年中無休

0120-868-666
おすすめの物件