賃貸物件一覧

建物 1,169 棟 部屋 2,411
表示棟数:

トーシンフェニックス目黒碑文谷 【04月25日更新】

分譲賃貸

初期費用クレジットカード決済可能

賃料 9.1万円 管理費 9,000円
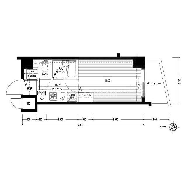
間取り 1K 面積 20.07㎡
住所 東京都目黒区碑文谷4-22-9 築年月 2005年4月
交通

東急東横線都立大学駅』徒歩9

間取り図 階数 間取り 面積 賃料 管理費 敷金 礼金 お気に入り お問合わせ
1K 3階 1K 20.07㎡ 9.1万円 9,000円 1.0ヶ月 1.0ヶ月
全ての空室情報を表示 その他-2 閉じる
建物 1,169棟中  139~139棟表示
お気に入りに追加しました
お気に入りを解除しました
検索条件を保存しました
現在の検索条件
こだわりの条件
会社情報
分譲賃貸サーチ

分譲賃貸サーチ
(株式会社エスティリンク)

営業時間:10:00~19:00

定休日:年中無休

0120-868-666
おすすめの物件