賃貸物件一覧

建物 1,130 棟 部屋 2,363
表示棟数:

リビオ日暮里グランスイート 【04月28日更新】

分譲賃貸

ペット相談

初期費用クレジットカード決済可能

賃料 29.0万円 管理費 25,000円
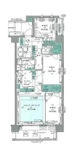
間取り 3LDK 面積 75.54㎡
住所 東京都荒川区西日暮里2-6 築年月 2012年7月
交通

JR山手線日暮里駅』徒歩6

JR京浜東北線日暮里駅』徒歩6

JR常磐線三河島駅』徒歩6

間取り図 階数 間取り 面積 賃料 管理費 敷金 礼金 お気に入り お問合わせ
3LDK 5階 3LDK 75.54㎡ 29.0万円 25,000円 1.0ヶ月 1.0ヶ月
全ての空室情報を表示 その他-2 閉じる
建物 1,130棟中  186~186棟表示
お気に入りに追加しました
お気に入りを解除しました
検索条件を保存しました
現在の検索条件
こだわりの条件
会社情報
分譲賃貸サーチ

分譲賃貸サーチ
(株式会社エスティリンク)

営業時間:10:00~19:00

定休日:年中無休

0120-868-666
おすすめの物件