賃貸物件一覧

建物 1,120 棟 部屋 2,276
表示棟数:

ライオンズグローベル蒲田センターフォート 【04月22日更新】

分譲賃貸

初期費用クレジットカード決済可能

賃料 17.4万円 管理費 0円
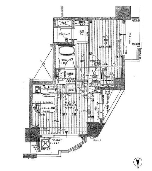
間取り 1LDK 面積 43.84㎡
住所 東京都大田区蒲田4-28-1 築年月 2005年10月
交通

JR京浜東北線蒲田駅』徒歩5

京急本線京急蒲田駅』徒歩5

京急空港線京急蒲田駅』徒歩5

間取り図 階数 間取り 面積 賃料 管理費 敷金 礼金 お気に入り お問合わせ
1LDK 6階 1LDK 43.84㎡ 17.4万円 - 1.0ヶ月 1.0ヶ月
全ての空室情報を表示 その他-2 閉じる
建物 1,120棟中  830~830棟表示
お気に入りに追加しました
お気に入りを解除しました
検索条件を保存しました
現在の検索条件
こだわりの条件
会社情報
分譲賃貸サーチ

分譲賃貸サーチ
(株式会社エスティリンク)

営業時間:10:00~19:00

定休日:年中無休

0120-868-666
おすすめの物件