荻窪駅の賃貸物件一覧
建物 3 棟
部屋 5 室
表示棟数:
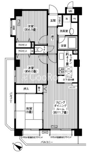
レジディア荻窪3 【01月22日更新】
建物
3棟中 1~3棟表示
お気に入りに追加しました
お気に入りを解除しました
検索条件を保存しました
会社情報
分譲賃貸サーチ
(株式会社エスティリンク)
営業時間:10:00~19:00
定休日:年中無休
おすすめの物件
-
更新 01/22
- パークハウス麻布十番アーバンス
- 空室:1 部屋
- 面積:41.07㎡
都営大江戸線
間取り:1LDK
賃料:24.0万円
-
更新 01/22
- インペリアル南麻布コート&サテライト
- 空室:2 部屋
- 面積:18.13㎡〜18.63㎡
東京メトロ日比谷線
『広尾駅』徒歩12分
間取り:1R
賃料:8.0万円〜10.0万円
-
更新 01/22
- 六本木ビュータワー
- 空室:19 部屋
- 面積:33.30㎡〜58.91㎡
東京メトロ南北線
『六本木一丁目駅』徒歩3分
間取り:1R〜2LDK
賃料:21.9万円〜40.9万円
-
更新 01/22
- 三田ガーデンヒルズ
- 空室:38 部屋
- 面積:29.34㎡〜161.56㎡
東京メトロ南北線
『麻布十番駅』徒歩5分
間取り:1R〜3SLDK
賃料:29.0万円〜350.0万円
-
更新 01/22
- アデニウム高輪
- 空室:1 部屋
- 面積:57.79㎡
都営浅草線
間取り:1SLDK
賃料:29.0万円
