東白楽駅の賃貸物件一覧
建物 1 棟
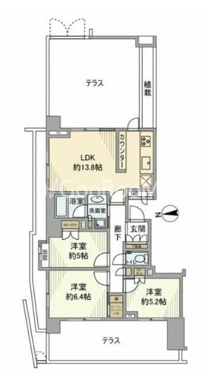
部屋 1 室
表示棟数:
建物
1棟中 1~1棟表示
お気に入りに追加しました
お気に入りを解除しました
検索条件を保存しました
会社情報
分譲賃貸サーチ
(株式会社エスティリンク)
営業時間:10:00~19:00
定休日:年中無休
おすすめの物件
-
更新 05/18
- ザ・パークハウス愛宕虎ノ門
- 空室:3 部屋
- 面積:54.80㎡〜64.52㎡
東京メトロ日比谷線
『神谷町駅』徒歩3分
間取り:1SLDK〜2LDK
賃料:40.0万円〜43.5万円
-
更新 05/18
- ハーモニーレジデンス田町
- 空室:2 部屋
- 面積:25.37㎡〜25.55㎡
JR山手線
『田町駅』徒歩8分
間取り:1K
賃料:13.8万円
-
更新 05/18
- ザ・レジデンス六本木
- 空室:3 部屋
- 面積:99.46㎡〜110.14㎡
東京メトロ南北線
『六本木一丁目駅』徒歩3分
間取り:3LDK
賃料:100.0万円〜125.0万円
-
更新 05/18
- パークコート六本木ヒルトップ
- 空室:6 部屋
- 面積:50.52㎡〜102.39㎡
東京メトロ南北線
間取り:1LDK〜3LDK
賃料:44.0万円〜135.0万円
-
更新 05/18
- グローバルフロントタワー
- 空室:4 部屋
- 面積:58.60㎡〜84.77㎡
JR山手線
『田町駅』徒歩10分
間取り:2LDK〜3LDK
賃料:36.0万円〜59.5万円
