久が原駅の賃貸物件一覧
建物 2 棟
部屋 5 室
表示棟数:
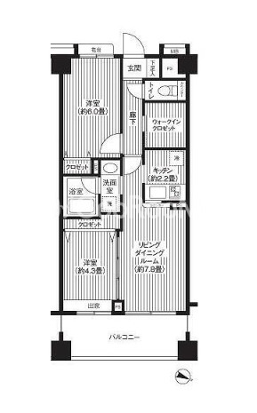
コスモリード西馬込 【11月19日更新】
建物
2棟中 1~2棟表示
お気に入りに追加しました
お気に入りを解除しました
検索条件を保存しました
会社情報
分譲賃貸サーチ
(株式会社エスティリンク)
営業時間:10:00~19:00
定休日:年中無休
おすすめの物件
-
更新 11/19
- ブリリアタワー浜離宮
- 空室:14 部屋
- 面積:25.13㎡〜90.16㎡
JR山手線
『浜松町駅』徒歩5分
間取り:1R〜3LDK
賃料:13.8万円〜90.0万円
-
更新 11/19
- ブリリア高輪レフィール
- 空室:1 部屋
- 面積:88.45㎡
JR山手線
間取り:3LDK
賃料:80.0万円
-
更新 11/19
- ワールドタワーレジデンス
- 空室:28 部屋
- 面積:40.30㎡〜103.38㎡
JR山手線
『浜松町駅』徒歩2分
間取り:1LDK〜3LDK
賃料:34.0万円〜150.0万円
-
更新 11/19
- リビオレゾン三田
- 空室:2 部屋
- 面積:20.49㎡〜34.54㎡
都営三田線
間取り:1K〜1LDK
賃料:12.0万円〜20.0万円
-
更新 11/19
- パークコート麻布十番ザ・タワー
- 空室:5 部屋
- 面積:42.32㎡〜88.41㎡
東京メトロ南北線
『麻布十番駅』徒歩3分
間取り:1LDK〜2LDK
賃料:33.0万円〜120.0万円
