賃貸物件一覧

建物 1,104 棟 部屋 2,258
表示棟数:

クリオレミントンハウス恵比寿 【04月21日更新】

分譲賃貸

初期費用クレジットカード決済可能

賃料 39.0万円 管理費 28,000円
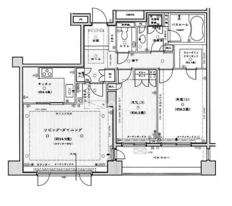
間取り 2LDK 面積 81.58㎡
住所 東京都目黒区三田1-5-6 築年月 2011年8月
交通

JR山手線恵比寿駅』徒歩10

JR山手線目黒駅』徒歩9

東京メトロ南北線目黒駅』徒歩9

都営三田線目黒駅』徒歩9

間取り図 階数 間取り 面積 賃料 管理費 敷金 礼金 お気に入り お問合わせ
2LDK 3階 2LDK 81.58㎡ 39.0万円 28,000円 1.0ヶ月 1.0ヶ月
全ての空室情報を表示 その他-2 閉じる
建物 1,104棟中  867~867棟表示
お気に入りに追加しました
お気に入りを解除しました
検索条件を保存しました
現在の検索条件
こだわりの条件
会社情報
分譲賃貸サーチ

分譲賃貸サーチ
(株式会社エスティリンク)

営業時間:10:00~19:00

定休日:年中無休

0120-868-666
おすすめの物件