賃貸物件一覧

建物 1,104 棟 部屋 2,258
表示棟数:

リビオレゾン両国オン・ザ・ステーション 【04月21日更新】

分譲賃貸

ペット相談

初期費用クレジットカード決済可能

賃料 15.2万円 管理費 12,000円
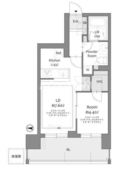
間取り 1LDK 面積 38.24㎡
住所 東京都墨田区亀沢1-7-2 築年月 2012年5月
交通

都営大江戸線両国駅』徒歩1

JR中央・総武線両国駅』徒歩5

JR中央・総武線浅草橋駅』徒歩5

間取り図 階数 間取り 面積 賃料 管理費 敷金 礼金 お気に入り お問合わせ
1LDK 6階 1LDK 38.24㎡ 15.2万円 12,000円 1.0ヶ月 1.0ヶ月
全ての空室情報を表示 その他-2 閉じる
建物 1,104棟中  868~868棟表示
お気に入りに追加しました
お気に入りを解除しました
検索条件を保存しました
現在の検索条件
こだわりの条件
会社情報
分譲賃貸サーチ

分譲賃貸サーチ
(株式会社エスティリンク)

営業時間:10:00~19:00

定休日:年中無休

0120-868-666
おすすめの物件