日暮里アインスタワー 【12月06日更新】
分譲賃貸
ペット相談
初期費用クレジットカード決済可能

| 間取り図 | 階数 | 間取り | 面積 | 賃料 | 管理費 | 敷金 | 礼金 | お気に入り | お問合わせ |
|---|---|---|---|---|---|---|---|---|---|
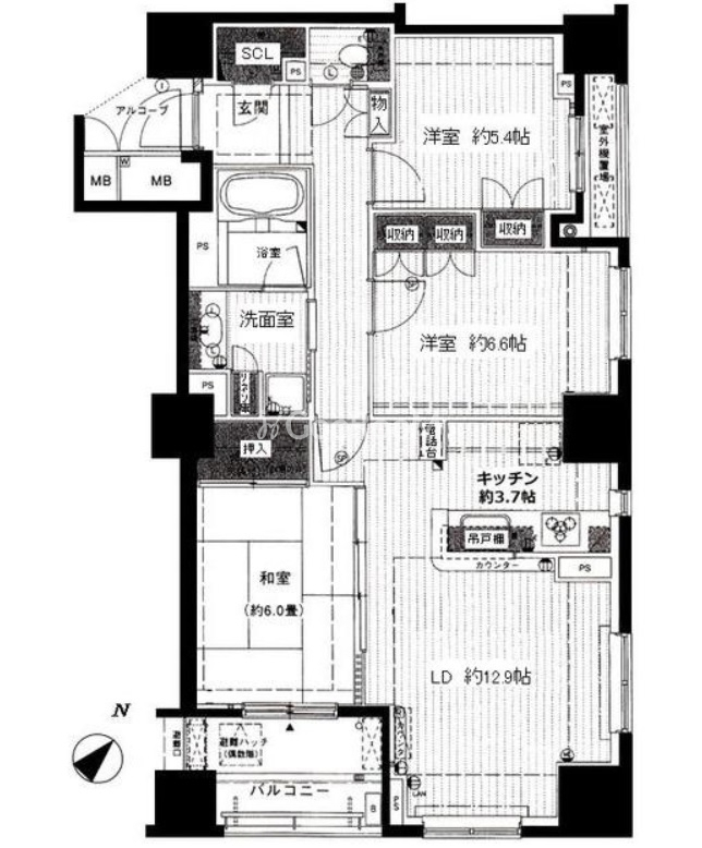
| 6階 | 3LDK | 80.05㎡ | 30.0万円 | 20,000円 | 1.0ヶ月 | 1.0ヶ月 |
|
お問合わせ | |
| 23階 | 2LDK | 67.87㎡ | 26.5万円 | 15,000円 | 1.0ヶ月 | 1.0ヶ月 |
|
お問合わせ |
Outline 日暮里アインスタワーの建物詳細
| 住所 | 東京都荒川区東日暮里5-42-10 Map | ||
| 交通 | |||
| 築年月 | 2005年1月 | 総戸数 | 163戸 |
| 階建 | 地上28階 (地下1階) | 種別/構造 | RC(鉄筋コンクリート) |
| 家賃相場 | 265,000円 ~ 300,000円 | 管理費 | 15,000円 ~ 20,000円 |
| 間取り | 2LDK | 専有面積 | 67.87㎡ ~ 80.05㎡ |
| 特長 | |||
| 設備 | |||
| 備考 |
※掲載している物件がご成約している場合もございますのでご了承ください。 ※こちらのお部屋情報の他にも空き部屋・空き予定のお部屋もございますので、メールやお電話にてお問い合わせください。 ※掲載詳細に相違がある場合は、弊社スタッフの情報を優先させていただきます。 ※駐車場、駐輪場については、メールやお電話にてお問い合わせください。お客様からのお問い合わせをお待ちしております。 ※ペット相談可の物件やSOHO利用については、お部屋ごとに禁止とされている場合もございますので御注意下さい。お客様に代わって弊社スタッフが確認と交渉を行います。 |
||
| URL | 「日暮里アインスタワー」の詳細はこちら | ||
| 関連リンク | |||
日暮里アインスタワーのご案内
「日暮里アインスタワー」は東京都荒川区東日暮里5-42-10にある2005年築の28階建の分譲賃貸マンションです。
最寄りの駅は日暮里駅になります。
その他、日暮里駅が利用可能です。
オートロック、防犯カメラ、宅配ボックスなどの設備がございます。各お部屋にも様々な特徴がございますので、是非お部屋の詳細ページもご覧ください。
また、初期費用をクレジットカードでお支払いいただくことも可能です。
内見の申し込みや物件・部屋について気になる点がございましたら、是非お問い合わせくださいませ。
東京都心エリアの分譲賃貸マンションをお探しなら、「分譲賃貸サーチ」へお任せください。
【会社概要 / お問い合わせ先】
分譲賃貸サーチ (株式会社エスティリンク)
TEL:0120-868-666
営業時間:10:00~19:00 定休日:年中無休
※地図上に表示される物件のアイコンは付近住所に所在することを表すものであり、実際の物件所在地とは異なる場合がございます。
-
更新 12/06
- 六本木ライズハウス
- 空室:2 部屋
- 面積:29.48㎡〜29.92㎡
東京メトロ南北線
『六本木一丁目駅』徒歩4分
間取り:1R
賃料:14.8万円〜15.0万円
-
更新 12/06
- 藤和シティホームズ恵比寿
- 空室:1 部屋
- 面積:28.06㎡
JR山手線
『恵比寿駅』徒歩7分
間取り:1DK
賃料:13.8万円
-
更新 12/06
- 浜松町スクエアstudio
- 空室:2 部屋
- 面積:97.39㎡〜115.22㎡
JR山手線
『浜松町駅』徒歩1分
間取り:2LDK〜3LDK
賃料:60.0万円〜72.0万円
-
更新 12/06
- アトラスヒルズ文京白山
- 空室:2 部屋
- 面積:24.09㎡〜41.62㎡
東京メトロ南北線
『本駒込駅』徒歩2分
間取り:1K〜1LDK
賃料:12.5万円〜22.0万円
-
更新 12/06
- スパシエリーヴァ浅草
- 空室:2 部屋
- 面積:26.18㎡〜44.14㎡
東京メトロ銀座線
間取り:1K〜1LDK
賃料:8.2万円〜17.0万円
-
更新 12/06
- グローリオ品川シーサイド
- 空室:1 部屋
- 面積:36.99㎡
京急本線
『青物横丁駅』徒歩6分
間取り:1LDK
賃料:14.2万円
-
更新 12/06
- レグノ・フィーゴ駒場東大前
- 空室:2 部屋
- 面積:46.90㎡〜58.15㎡
京王井の頭線
『駒場東大前駅』徒歩1分
間取り:1R
賃料:21.0万円〜22.5万円
-
更新 12/06
- パークハウス用賀マスターフォート
- 空室:1 部屋
- 面積:77.05㎡
東急田園都市線
『用賀駅』徒歩9分
間取り:3LDK
賃料:30.5万円
-
更新 12/06
- パークハウス等々力一丁目
- 空室:1 部屋
- 面積:75.15㎡
東急大井町線
『尾山台駅』徒歩10分
間取り:3LDK
賃料:29.2万円
-
更新 12/06
- コスモポリス品川
- 空室:1 部屋
- 面積:76.04㎡
JR山手線
間取り:2LDK
賃料:35.0万円
-
更新 12/06
- ブリリアタワー東京
- 空室:2 部屋
- 面積:54.07㎡〜96.27㎡
JR総武本線
間取り:1LDK〜3SLDK
賃料:22.0万円〜55.0万円
-
更新 12/06
- アルシオンエアポートタワー
- 空室:1 部屋
- 面積:33.88㎡
京急空港線
『大鳥居駅』徒歩1分
間取り:1R
賃料:14.6万円
-
更新 12/06
- 六本木ライズハウス
- 空室:2 部屋
- 面積:29.48㎡〜29.92㎡
東京メトロ南北線
『六本木一丁目駅』徒歩4分
間取り:1R
賃料:14.8万円〜15.0万円
-
更新 12/06
- クレヴィア中目黒
- 空室:1 部屋
- 面積:56.16㎡
東急東横線
『中目黒駅』徒歩4分
間取り:2LDK
賃料:35.2万円
-
更新 12/06
- ラグゼナ平和台
- 空室:3 部屋
- 面積:33.51㎡〜44.61㎡
東京メトロ有楽町線
『平和台駅』徒歩6分
間取り:1K〜1LDK
賃料:11.6万円〜16.5万円
-
更新 12/06
- 藤和シティホームズ恵比寿
- 空室:1 部屋
- 面積:28.06㎡
JR山手線
『恵比寿駅』徒歩7分
間取り:1DK
賃料:13.8万円
-
更新 12/06
- パークホームズ西荻窪グランビュー
- 空室:2 部屋
- 面積:50.15㎡〜60.16㎡
JR中央・総武線
間取り:2LDK〜3LDK
賃料:17.9万円〜20.0万円
-
更新 12/06
- ビバリーホームズ代官山
- 空室:1 部屋
- 面積:30.63㎡
JR山手線
『渋谷駅』徒歩6分
間取り:1K
賃料:15.7万円
-
更新 12/06
- レオンコンフォート池田山
- 空室:5 部屋
- 面積:20.62㎡〜20.90㎡
JR山手線
『五反田駅』徒歩7分
間取り:1K
賃料:12.5万円〜13.0万円
-
更新 12/06
- パークホームズ文京白山ヒルテラス
- 空室:7 部屋
- 面積:53.40㎡〜66.21㎡
都営三田線
『白山駅』徒歩2分
間取り:2LDK〜2SLDK
賃料:30.1万円〜51.0万円
-
更新 12/06
- 浜松町スクエアstudio
- 空室:2 部屋
- 面積:97.39㎡〜115.22㎡
JR山手線
『浜松町駅』徒歩1分
間取り:2LDK〜3LDK
賃料:60.0万円〜72.0万円
-
更新 12/06
- アトラスヒルズ文京白山
- 空室:2 部屋
- 面積:24.09㎡〜41.62㎡
東京メトロ南北線
『本駒込駅』徒歩2分
間取り:1K〜1LDK
賃料:12.5万円〜22.0万円
-
更新 12/06
- ルーブル北嶺町
- 空室:2 部屋
- 面積:25.48㎡〜41.25㎡
東急池上線
『御嶽山駅』徒歩3分
間取り:1K〜2DK
賃料:11.1万円〜16.5万円
-
更新 12/06
- パークテラス下北沢
- 空室:1 部屋
- 面積:57.41㎡
小田急小田原線
間取り:1SLDK
賃料:22.6万円
分譲賃貸サーチ
(株式会社エスティリンク)
営業時間:10:00~19:00
定休日:年中無休
-
更新 12/06
- グランスイート麻布六本木
- 空室:7 部屋
- 面積:25.47㎡〜53.88㎡
東京メトロ南北線
『六本木一丁目駅』徒歩4分
間取り:1K〜1SLDK
賃料:17.0万円〜38.0万円
-
更新 12/06
- スカイコートパレス芝浦
- 空室:2 部屋
- 面積:25.52㎡
JR山手線
『田町駅』徒歩10分
間取り:1K
賃料:11.2万円
-
更新 12/06
- パークコート麻布十番ザ・タワー
- 空室:4 部屋
- 面積:42.32㎡〜90.02㎡
東京メトロ南北線
『麻布十番駅』徒歩3分
間取り:1LDK〜2LDK
賃料:33.0万円〜110.0万円
-
更新 12/06
- ワールドタワーレジデンス
- 空室:26 部屋
- 面積:40.15㎡〜103.38㎡
JR山手線
『浜松町駅』徒歩2分
間取り:1LDK〜3LDK
賃料:35.0万円〜150.0万円
-
更新 12/06
- パークリュクス虎ノ門
- 空室:2 部屋
- 面積:26.01㎡〜34.35㎡
都営三田線
『御成門駅』徒歩7分
間取り:1R〜1LDK
賃料:14.8万円〜21.8万円
日暮里アインスタワーは、日暮里駅から5分以内の駅近物件になります。
オートロック、防犯カメラ、24hセキュリティなどがあり、セキュリティ対策がなされているので女性の一人暮らしやお子さんがいる方でも安心快適に暮らせます。
日暮里アインスタワーは、現在空室が2室となっています。
<分譲賃貸サーチ>では豊富な経験と知識を活かし、お客様により良いライフスタイルをご提供しております。
内見や掲載されていない情報等については、<分譲賃貸サーチ>まで気軽にお問い合わせください。