ワイズポート 【04月28日更新】
分譲賃貸
ペット相談
初期費用クレジットカード決済可能

| 間取り図 | 階数 | 間取り | 面積 | 賃料 | 管理費 | 敷金 | 礼金 | お気に入り | お問合わせ |
|---|---|---|---|---|---|---|---|---|---|
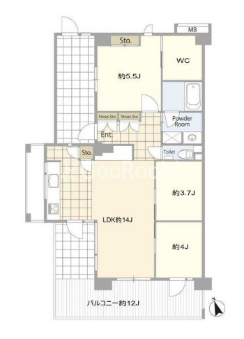
| 2階 | 3LDK | 76.46㎡ | 46.0万円 | 20,000円 | 1.0ヶ月 | 1.0ヶ月 |
|
お問合わせ |
Outline ワイズポートの建物詳細
| 住所 | 東京都渋谷区恵比寿4-12-13 Map | ||
| 交通 | |||
| 築年月 | 2001年9月 | 総戸数 | 17戸 |
| 階建 | 地上6階 (地下1階) | 種別/構造 | RC(鉄筋コンクリート) |
| 家賃相場 | 460,000円 | 管理費 | 20,000円 |
| 間取り | 3LDK | 専有面積 | 76.46㎡ |
| 特長 | |||
| 設備 | |||
| 備考 |
※掲載している物件がご成約している場合もございますのでご了承ください。 ※こちらのお部屋情報の他にも空き部屋・空き予定のお部屋もございますので、メールやお電話にてお問い合わせください。 ※掲載詳細に相違がある場合は、弊社スタッフの情報を優先させていただきます。 ※駐車場、駐輪場については、メールやお電話にてお問い合わせください。お客様からのお問い合わせをお待ちしております。 ※ペット相談可の物件やSOHO利用については、お部屋ごとに禁止とされている場合もございますので御注意下さい。お客様に代わって弊社スタッフが確認と交渉を行います。 |
||
| URL | 「ワイズポート」の詳細はこちら | ||
| 関連リンク | |||
ワイズポートのご案内
「ワイズポート」は東京都渋谷区恵比寿4-12-13にある2001年築の6階建の分譲賃貸マンションです。
最寄りの駅は恵比寿駅になります。
その他、恵比寿駅が利用可能です。
オートロック、防犯カメラ、宅配ボックスなどの設備がございます。各お部屋にも様々な特徴がございますので、是非お部屋の詳細ページもご覧ください。
また、初期費用をクレジットカードでお支払いいただくことも可能です。
内見の申し込みや物件・部屋について気になる点がございましたら、是非お問い合わせくださいませ。
東京都心エリアの分譲賃貸マンションをお探しなら、「分譲賃貸サーチ」へお任せください。
【会社概要 / お問い合わせ先】
分譲賃貸サーチ (株式会社エスティリンク)
TEL:0120-868-666
営業時間:10:00~19:00 定休日:年中無休
※地図上に表示される物件のアイコンは付近住所に所在することを表すものであり、実際の物件所在地とは異なる場合がございます。
-
更新 04/28
- ワイズポート
- 空室:1 部屋
- 面積:76.46㎡
JR山手線
『恵比寿駅』徒歩5分
間取り:3LDK
賃料:46.0万円
-
更新 04/28
- グラーサ銀座イースト
- 空室:1 部屋
- 面積:21.31㎡
東京メトロ有楽町線
『新富町駅』徒歩2分
間取り:1K
賃料:10.9万円
-
更新 04/28
- 日神デュオステージ幡ヶ谷
- 空室:1 部屋
- 面積:30.57㎡
京王線
『幡ヶ谷駅』徒歩5分
間取り:1R
賃料:13.0万円
-
更新 04/28
- アルシオン芝浦
- 空室:1 部屋
- 面積:24.07㎡
JR山手線
『田町駅』徒歩9分
間取り:1R
賃料:11.0万円
-
更新 04/28
- ラコント永福
- 空室:1 部屋
- 面積:66.08㎡
京王井の頭線
『永福町駅』徒歩6分
間取り:2LDK
賃料:19.0万円
-
更新 04/28
- ガラ・グランディ大手町
- 空室:1 部屋
- 面積:36.93㎡
東京メトロ千代田線
間取り:1LDK
賃料:17.5万円
-
更新 04/28
- ネオマイム西早稲田パークス
- 空室:1 部屋
- 面積:54.76㎡
東京メトロ東西線
『早稲田駅』徒歩7分
間取り:2LDK
賃料:19.5万円
-
更新 04/28
- 東急ドエル・キルト三軒茶屋
- 空室:3 部屋
- 面積:25.00㎡〜40.17㎡
東急田園都市線
『三軒茶屋駅』徒歩3分
間取り:1R
賃料:10.5万円〜14.8万円
-
更新 04/28
- クレッセント芦花公園
- 空室:1 部屋
- 面積:80.89㎡
京王線
『芦花公園駅』徒歩3分
間取り:3LDK
賃料:33.0万円
-
更新 04/28
- ライオンズステージ仙台堀川公園
- 空室:1 部屋
- 面積:61.62㎡
東京メトロ東西線
『南砂町駅』徒歩4分
間取り:2LDK
賃料:18.9万円
-
更新 04/28
- シーリアお台場一番街
- 空室:3 部屋
- 面積:38.61㎡〜87.01㎡
ゆりかもめ
『お台場海浜公園駅』徒歩9分
間取り:1K〜3LDK
賃料:13.0万円〜31.5万円
-
更新 04/28
- クレッセント麻布ビュータワー
- 空室:1 部屋
- 面積:62.18㎡
都営大江戸線
『赤羽橋駅』徒歩2分
間取り:2LDK
賃料:34.0万円
-
更新 04/28
- 御殿山トラストコート
- 空室:1 部屋
- 面積:187.79㎡
JR山手線
間取り:3LDK
賃料:94.0万円
-
更新 04/28
- ワイズポート
- 空室:1 部屋
- 面積:76.46㎡
JR山手線
『恵比寿駅』徒歩5分
間取り:3LDK
賃料:46.0万円
-
更新 04/28
- グラーサ銀座イースト
- 空室:1 部屋
- 面積:21.31㎡
東京メトロ有楽町線
『新富町駅』徒歩2分
間取り:1K
賃料:10.9万円
-
更新 04/28
- 日神デュオステージ幡ヶ谷
- 空室:1 部屋
- 面積:30.57㎡
京王線
『幡ヶ谷駅』徒歩5分
間取り:1R
賃料:13.0万円
-
更新 04/28
- オーベル代官山DE
- 空室:1 部屋
- 面積:51.81㎡
東急東横線
『代官山駅』徒歩4分
間取り:2LDK
賃料:28.0万円
-
更新 04/28
- スカイコートパレス八丁堀
- 空室:1 部屋
- 面積:25.47㎡
東京メトロ日比谷線
間取り:1K
賃料:12.2万円
-
更新 04/28
- アトラス恵比寿
- 空室:1 部屋
- 面積:32.06㎡
JR山手線
『恵比寿駅』徒歩11分
間取り:1DK
賃料:20.0万円
-
更新 04/28
- アルシオン芝浦
- 空室:1 部屋
- 面積:24.07㎡
JR山手線
『田町駅』徒歩9分
間取り:1R
賃料:11.0万円
-
更新 04/28
- アトラスタワー六本木
- 空室:1 部屋
- 面積:89.51㎡
東京メトロ日比谷線
『六本木駅』徒歩3分
間取り:1LDK
賃料:85.0万円
-
更新 04/28
- レガリス愛宕御成門
- 空室:1 部屋
- 面積:25.67㎡
JR山手線
間取り:1K
賃料:13.4万円
-
更新 04/28
- パークホームズ大岡山ラヴィアンコート
- 空室:1 部屋
- 面積:66.30㎡
東急目黒線
『大岡山駅』徒歩1分
間取り:2LDK
賃料:35.0万円
-
更新 04/28
- ザ・レジデンス六本木
- 空室:1 部屋
- 面積:99.46㎡
東京メトロ南北線
『六本木一丁目駅』徒歩3分
間取り:3LDK
賃料:100.0万円
分譲賃貸サーチ
(株式会社エスティリンク)
営業時間:10:00~19:00
定休日:年中無休
-
更新 04/28
- ザ・ヒルトップタワー高輪台
- 空室:2 部屋
- 面積:66.44㎡〜68.26㎡
都営浅草線
『高輪台駅』徒歩1分
間取り:2LDK
賃料:38.0万円〜42.0万円
-
更新 04/28
- 三田ガーデンヒルズ
- 空室:31 部屋
- 面積:29.34㎡〜132.11㎡
東京メトロ南北線
『麻布十番駅』徒歩5分
間取り:1R〜3LDK
賃料:27.3万円〜330.0万円
-
更新 04/28
- パークコート麻布十番ザ・タワー
- 空室:3 部屋
- 面積:42.29㎡〜94.55㎡
東京メトロ南北線
『麻布十番駅』徒歩3分
間取り:1LDK〜2LDK
賃料:37.0万円〜110.0万円
-
更新 04/28
- ディアナガーデン西麻布
- 空室:1 部屋
- 面積:65.80㎡
東京メトロ日比谷線
『広尾駅』徒歩9分
間取り:1SLDK
賃料:42.0万円
-
更新 04/28
- ザ六本木東京クラブレジデンス
- 空室:2 部屋
- 面積:80.56㎡
東京メトロ日比谷線
『六本木駅』徒歩3分
間取り:2LDK
賃料:60.0万円〜62.0万円
ワイズポートは、恵比寿駅から5分以内の駅近物件になります。
オートロック、防犯カメラ、24hセキュリティなどがあり、セキュリティ対策がなされているので女性の一人暮らしやお子さんがいる方でも安心快適に暮らせます。
ワイズポートは、現在空室が1室となっています。
<分譲賃貸サーチ>では豊富な経験と知識を活かし、お客様により良いライフスタイルをご提供しております。
内見や掲載されていない情報等については、<分譲賃貸サーチ>まで気軽にお問い合わせください。