アルテシモ グレイス 【12月06日更新】
分譲賃貸
仲介手数料無料
敷金ゼロ
ペット相談
初期費用クレジットカード決済可能

| 間取り図 | 階数 | 間取り | 面積 | 賃料 | 管理費 | 敷金 | 礼金 | お気に入り | お問合わせ |
|---|---|---|---|---|---|---|---|---|---|
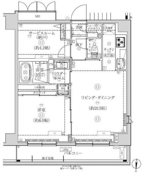
| 7階 | 1SLDK | 53.11㎡ | 18.0万円 | 20,000円 | 0.0ヶ月 | 1.0ヶ月 |
|
お問合わせ |
Outline アルテシモ グレイスの建物詳細
| 住所 | 東京都墨田区緑3-22-7 Map | ||
| 交通 | |||
| 築年月 | 2018年7月 | 総戸数 | 56戸 |
| 階建 | 地上8階 | 種別/構造 | RC(鉄筋コンクリート) |
| 家賃相場 | 180,000円 | 管理費 | 20,000円 |
| 間取り | 1SLDK | 専有面積 | 53.11㎡ |
| 特長 | |||
| 設備 | |||
| 備考 |
※掲載している物件がご成約している場合もございますのでご了承ください。 ※こちらのお部屋情報の他にも空き部屋・空き予定のお部屋もございますので、メールやお電話にてお問い合わせください。 ※掲載詳細に相違がある場合は、弊社スタッフの情報を優先させていただきます。 ※駐車場、駐輪場については、メールやお電話にてお問い合わせください。お客様からのお問い合わせをお待ちしております。 ※ペット相談可の物件やSOHO利用については、お部屋ごとに禁止とされている場合もございますので御注意下さい。お客様に代わって弊社スタッフが確認と交渉を行います。 |
||
| URL | 「アルテシモ グレイス」の詳細はこちら | ||
| 関連リンク | |||
アルテシモ グレイスのご案内
「アルテシモ グレイス」は東京都墨田区緑3-22-7にある2018年築の8階建の分譲賃貸マンションです。
最寄りの駅は両国駅になります。
その他、両国駅 錦糸町駅が利用可能です。
オートロック、防犯カメラ、宅配ボックスなどの設備がございます。各お部屋にも様々な特徴がございますので、是非お部屋の詳細ページもご覧ください。
また、初期費用をクレジットカードでお支払いいただくことも可能です。
内見の申し込みや物件・部屋について気になる点がございましたら、是非お問い合わせくださいませ。
東京都心エリアの分譲賃貸マンションをお探しなら、「分譲賃貸サーチ」へお任せください。
【会社概要 / お問い合わせ先】
分譲賃貸サーチ (株式会社エスティリンク)
TEL:0120-868-666
営業時間:10:00~19:00 定休日:年中無休
※地図上に表示される物件のアイコンは付近住所に所在することを表すものであり、実際の物件所在地とは異なる場合がございます。
-
更新 12/06
- ラグゼナ平和台
- 空室:3 部屋
- 面積:33.51㎡〜44.61㎡
東京メトロ有楽町線
『平和台駅』徒歩6分
間取り:1K〜1LDK
賃料:11.6万円〜16.5万円
-
更新 12/06
- ビバリーホームズ代官山
- 空室:1 部屋
- 面積:30.63㎡
JR山手線
『渋谷駅』徒歩6分
間取り:1K
賃料:15.7万円
-
更新 12/06
- レオンコンフォート池田山
- 空室:5 部屋
- 面積:20.62㎡〜20.90㎡
JR山手線
『五反田駅』徒歩7分
間取り:1K
賃料:12.5万円〜13.0万円
-
更新 12/06
- ブリリア東中野ステーションフロント
- 空室:1 部屋
- 面積:30.73㎡
JR中央・総武線
間取り:1DK
賃料:15.8万円
-
更新 12/06
- ステラメゾン三軒茶屋
- 空室:8 部屋
- 面積:25.02㎡〜51.53㎡
東急田園都市線
『三軒茶屋駅』徒歩5分
間取り:1K〜2LDK
賃料:14.0万円〜26.5万円
-
更新 12/06
- シェフルール西早稲田ラヴィーナ
- 空室:2 部屋
- 面積:32.16㎡〜58.31㎡
JR山手線
『高田馬場駅』徒歩11分
間取り:1K〜2LDK
賃料:13.2万円〜26.2万円
-
更新 12/06
- シティハウス中目黒テラス
- 空室:1 部屋
- 面積:38.90㎡
JR山手線
『目黒駅』徒歩13分
間取り:1LDK
賃料:21.8万円
-
更新 12/06
- アールブラン高津レジデンス
- 空室:1 部屋
- 面積:72.25㎡
東急田園都市線
『高津駅』徒歩11分
間取り:2SLDK
賃料:22.0万円
-
更新 12/06
- エステムコート亀戸東京イースト
- 空室:2 部屋
- 面積:29.57㎡〜30.18㎡
JR中央・総武線
『亀戸駅』徒歩8分
間取り:1K
賃料:9.5万円〜10.4万円
-
更新 12/06
- ズーム秋葉原
- 空室:2 部屋
- 面積:25.59㎡〜41.64㎡
JR山手線
『秋葉原駅』徒歩5分
間取り:1K〜1LDK
賃料:15.1万円〜20.3万円
-
更新 12/06
- プラウド文京関口
- 空室:1 部屋
- 面積:60.27㎡
東京メトロ有楽町線
『江戸川橋駅』徒歩3分
間取り:2LDK
賃料:34.0万円
-
更新 12/06
- シティハウス東麻布
- 空室:2 部屋
- 面積:25.76㎡〜55.27㎡
都営大江戸線
『赤羽橋駅』徒歩4分
間取り:1K〜2LDK
賃料:14.8万円〜35.0万円
-
更新 12/06
- 六本木ライズハウス
- 空室:2 部屋
- 面積:29.48㎡〜29.92㎡
東京メトロ南北線
『六本木一丁目駅』徒歩4分
間取り:1R
賃料:14.8万円〜15.0万円
-
更新 12/06
- クレヴィア中目黒
- 空室:1 部屋
- 面積:56.16㎡
東急東横線
『中目黒駅』徒歩4分
間取り:2LDK
賃料:35.2万円
-
更新 12/06
- ラグゼナ平和台
- 空室:3 部屋
- 面積:33.51㎡〜44.61㎡
東京メトロ有楽町線
『平和台駅』徒歩6分
間取り:1K〜1LDK
賃料:11.6万円〜16.5万円
-
更新 12/06
- 藤和シティホームズ恵比寿
- 空室:1 部屋
- 面積:28.06㎡
JR山手線
『恵比寿駅』徒歩7分
間取り:1DK
賃料:13.8万円
-
更新 12/06
- パークホームズ西荻窪グランビュー
- 空室:2 部屋
- 面積:50.15㎡〜60.16㎡
JR中央・総武線
間取り:2LDK〜3LDK
賃料:17.9万円〜20.0万円
-
更新 12/06
- ビバリーホームズ代官山
- 空室:1 部屋
- 面積:30.63㎡
JR山手線
『渋谷駅』徒歩6分
間取り:1K
賃料:15.7万円
-
更新 12/06
- レオンコンフォート池田山
- 空室:5 部屋
- 面積:20.62㎡〜20.90㎡
JR山手線
『五反田駅』徒歩7分
間取り:1K
賃料:12.5万円〜13.0万円
-
更新 12/06
- パークホームズ文京白山ヒルテラス
- 空室:7 部屋
- 面積:53.40㎡〜66.21㎡
都営三田線
『白山駅』徒歩2分
間取り:2LDK〜2SLDK
賃料:30.1万円〜51.0万円
-
更新 12/06
- 浜松町スクエアstudio
- 空室:2 部屋
- 面積:97.39㎡〜115.22㎡
JR山手線
『浜松町駅』徒歩1分
間取り:2LDK〜3LDK
賃料:60.0万円〜72.0万円
-
更新 12/06
- アトラスヒルズ文京白山
- 空室:2 部屋
- 面積:24.09㎡〜41.62㎡
東京メトロ南北線
『本駒込駅』徒歩2分
間取り:1K〜1LDK
賃料:12.5万円〜22.0万円
-
更新 12/06
- ルーブル北嶺町
- 空室:2 部屋
- 面積:25.48㎡〜41.25㎡
東急池上線
『御嶽山駅』徒歩3分
間取り:1K〜2DK
賃料:11.1万円〜16.5万円
-
更新 12/06
- パークテラス下北沢
- 空室:1 部屋
- 面積:57.41㎡
小田急小田原線
間取り:1SLDK
賃料:22.6万円
分譲賃貸サーチ
(株式会社エスティリンク)
営業時間:10:00~19:00
定休日:年中無休
-
更新 12/06
- グランスイート麻布六本木
- 空室:7 部屋
- 面積:25.47㎡〜53.88㎡
東京メトロ南北線
『六本木一丁目駅』徒歩4分
間取り:1K〜1SLDK
賃料:17.0万円〜38.0万円
-
更新 12/06
- スカイコートパレス芝浦
- 空室:2 部屋
- 面積:25.52㎡
JR山手線
『田町駅』徒歩10分
間取り:1K
賃料:11.2万円
-
更新 12/06
- パークコート麻布十番ザ・タワー
- 空室:4 部屋
- 面積:42.32㎡〜90.02㎡
東京メトロ南北線
『麻布十番駅』徒歩3分
間取り:1LDK〜2LDK
賃料:33.0万円〜110.0万円
-
更新 12/06
- ワールドタワーレジデンス
- 空室:26 部屋
- 面積:40.15㎡〜103.38㎡
JR山手線
『浜松町駅』徒歩2分
間取り:1LDK〜3LDK
賃料:35.0万円〜150.0万円
-
更新 12/06
- パークリュクス虎ノ門
- 空室:2 部屋
- 面積:26.01㎡〜34.35㎡
都営三田線
『御成門駅』徒歩7分
間取り:1R〜1LDK
賃料:14.8万円〜21.8万円
アルテシモ グレイスは、東京都墨田区緑3-22-7にある、「両国駅」から徒歩で8分の分譲賃貸マンションになります。
オートロック、防犯カメラ、24hセキュリティなどがあり、セキュリティ対策がなされているので女性の一人暮らしやお子さんがいる方でも安心快適に暮らせます。
アルテシモ グレイスは、現在空室が1室となっています。
<分譲賃貸サーチ>では豊富な経験と知識を活かし、お客様により良いライフスタイルをご提供しております。
内見や掲載されていない情報等については、<分譲賃貸サーチ>まで気軽にお問い合わせください。