フェニックス新宿夏目坂
分譲賃貸
ペット相談
初期費用クレジットカード決済可能

Outline フェニックス新宿夏目坂の建物詳細
| 住所 | 東京都新宿区原町3-33-2 Map | ||
| 交通 | |||
| 築年月 | 2012年8月 | 総戸数 | 27戸 |
| 階建 | 地上10階 | 種別/構造 | RC(鉄筋コンクリート) |
| 家賃相場 | 0円 | 管理費 | 0円 |
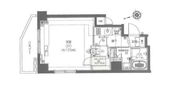
| 間取り | -- | 専有面積 | ㎡ |
| 特長 | |||
| 設備 | |||
| 備考 |
※掲載している物件がご成約している場合もございますのでご了承ください。 ※こちらのお部屋情報の他にも空き部屋・空き予定のお部屋もございますので、メールやお電話にてお問い合わせください。 ※掲載詳細に相違がある場合は、弊社スタッフの情報を優先させていただきます。 ※駐車場、駐輪場については、メールやお電話にてお問い合わせください。お客様からのお問い合わせをお待ちしております。 ※ペット相談可の物件やSOHO利用については、お部屋ごとに禁止とされている場合もございますので御注意下さい。お客様に代わって弊社スタッフが確認と交渉を行います。 |
||
| URL | 「フェニックス新宿夏目坂」の詳細はこちら | ||
| 関連リンク | |||
フェニックス新宿夏目坂のご案内
「フェニックス新宿夏目坂」は東京都新宿区原町3-33-2にある2012年築の10階建の分譲賃貸マンションです。
最寄りの駅は若松河田駅になります。
その他、若松河田駅 牛込柳町駅 神楽坂駅が利用可能です。
オートロック、防犯カメラ、宅配ボックスなどの設備がございます。各お部屋にも様々な特徴がございますので、是非お部屋の詳細ページもご覧ください。
また、初期費用をクレジットカードでお支払いいただくことも可能です。
内見の申し込みや物件・部屋について気になる点がございましたら、是非お問い合わせくださいませ。
東京都心エリアの分譲賃貸マンションをお探しなら、「分譲賃貸サーチ」へお任せください。
【会社概要 / お問い合わせ先】
分譲賃貸サーチ (株式会社エスティリンク)
TEL:0120-868-666
営業時間:10:00~19:00 定休日:年中無休
※地図上に表示される物件のアイコンは付近住所に所在することを表すものであり、実際の物件所在地とは異なる場合がございます。
-
更新 05/22
- ガーラ・グランディ池袋2
- 空室:2 部屋
- 面積:20.37㎡
JR山手線
『池袋駅』徒歩10分
間取り:1K
賃料:9.0万円〜9.8万円
-
更新 05/22
- アトラス駒沢大学
- 空室:1 部屋
- 面積:30.30㎡
東急田園都市線
『駒沢大学駅』徒歩5分
間取り:1K
賃料:12.6万円
-
更新 05/22
- 美竹コート
- 空室:4 部屋
- 面積:35.03㎡〜50.41㎡
東京メトロ半蔵門線
間取り:1LDK〜2LDK
賃料:24.9万円〜33.8万円
-
更新 05/22
- フェニシア学芸大学
- 空室:2 部屋
- 面積:25.56㎡〜26.00㎡
東急東横線
『学芸大学駅』徒歩12分
間取り:1K
賃料:11.0万円〜12.2万円
-
更新 05/22
- リビオ日本橋浜町パークフィール
- 空室:1 部屋
- 面積:43.43㎡
都営新宿線
『浜町駅』徒歩2分
間取り:1LDK
賃料:20.5万円
-
更新 05/22
- クリオ築地川公園
- 空室:1 部屋
- 面積:70.65㎡
東京メトロ日比谷線
『築地駅』徒歩3分
間取り:3LDK
賃料:33.0万円
-
更新 05/22
- リビオレゾン大手町
- 空室:1 部屋
- 面積:50.15㎡
JR山手線
『神田駅』徒歩6分
間取り:2LDK
賃料:28.0万円
-
更新 05/22
- ディップス東十条
- 空室:1 部屋
- 面積:25.96㎡
JR京浜東北線
『東十条駅』徒歩6分
間取り:1K
賃料:9.2万円
-
更新 05/22
- レジェンダリーコート赤羽
- 空室:1 部屋
- 面積:34.10㎡
JR京浜東北線
間取り:1LDK
賃料:14.0万円
-
更新 05/22
- ザ・パークハウス浅草橋西レジデンス
- 空室:1 部屋
- 面積:57.00㎡
都営大江戸線
『新御徒町駅』徒歩7分
間取り:2LDK
賃料:26.3万円
-
更新 05/22
- クレヴィア東陽町
- 空室:2 部屋
- 面積:30.02㎡〜30.16㎡
東京メトロ東西線
『東陽町駅』徒歩3分
間取り:1DK〜1LDK
賃料:13.0万円〜13.8万円
-
更新 05/22
- リビオレゾン東銀座
- 空室:1 部屋
- 面積:41.05㎡
東京メトロ有楽町線
『新富町駅』徒歩2分
間取り:1LDK
賃料:18.5万円
-
更新 05/22
- ルーブル新丸子
- 空室:2 部屋
- 面積:21.66㎡
東急東横線
『新丸子駅』徒歩3分
間取り:1K
賃料:9.9万円〜10.1万円
-
更新 05/22
- シティタワー池袋
- 空室:1 部屋
- 面積:60.42㎡
JR山手線
『池袋駅』徒歩11分
間取り:2LDK
賃料:28.5万円
-
更新 05/22
- ガーラ・グランディ池袋2
- 空室:2 部屋
- 面積:20.37㎡
JR山手線
『池袋駅』徒歩10分
間取り:1K
賃料:9.0万円〜9.8万円
-
更新 05/22
- アトラス駒沢大学
- 空室:1 部屋
- 面積:30.30㎡
東急田園都市線
『駒沢大学駅』徒歩5分
間取り:1K
賃料:12.6万円
-
更新 05/22
- 美竹コート
- 空室:4 部屋
- 面積:35.03㎡〜50.41㎡
東京メトロ半蔵門線
間取り:1LDK〜2LDK
賃料:24.9万円〜33.8万円
-
更新 05/22
- フェニシア学芸大学
- 空室:2 部屋
- 面積:25.56㎡〜26.00㎡
東急東横線
『学芸大学駅』徒歩12分
間取り:1K
賃料:11.0万円〜12.2万円
-
更新 05/22
- シーフォルム西小山
- 空室:2 部屋
- 面積:25.32㎡〜25.72㎡
東急目黒線
『西小山駅』徒歩10分
間取り:1DK〜2K
賃料:12.7万円〜13.2万円
-
更新 05/22
- リビオ日本橋人形町
- 空室:1 部屋
- 面積:41.49㎡
東京メトロ半蔵門線
『水天宮前駅』徒歩1分
間取り:1LDK
賃料:21.5万円
-
更新 05/22
- ルーブル目黒不動前
- 空室:3 部屋
- 面積:20.58㎡〜41.68㎡
東急目黒線
『不動前駅』徒歩9分
間取り:1K〜2DK
賃料:10.3万円〜17.9万円
-
更新 05/22
- クレヴィスタ品川西大井
- 空室:1 部屋
- 面積:20.32㎡
JR湘南新宿ライン
間取り:1R
賃料:9.1万円
-
更新 05/22
- 大崎ステーションレジデンス
- 空室:25 部屋
- 面積:25.04㎡〜80.76㎡
JR山手線
『大崎駅』徒歩3分
間取り:1R〜3LDK
賃料:16.6万円〜69.9万円
-
更新 05/22
- アーバンパレス広尾
- 空室:1 部屋
- 面積:63.64㎡
JR山手線
『恵比寿駅』徒歩12分
間取り:2LDK
賃料:33.0万円
分譲賃貸サーチ
(株式会社エスティリンク)
営業時間:10:00~19:00
定休日:年中無休
-
更新 05/22
- シティタワー品川
- 空室:5 部屋
- 面積:82.77㎡〜89.18㎡
JR山手線
間取り:3LDK
賃料:37.8万円〜43.0万円
-
更新 05/22
- フェイバリッチタワー品川
- 空室:2 部屋
- 面積:40.00㎡〜86.75㎡
JR山手線
間取り:1R〜3LDK
賃料:21.0万円〜38.0万円
-
更新 05/22
- ザ・パークハウス愛宕虎ノ門
- 空室:3 部屋
- 面積:54.80㎡〜64.52㎡
東京メトロ日比谷線
『神谷町駅』徒歩3分
間取り:1SLDK〜2LDK
賃料:40.0万円〜43.5万円
-
更新 05/22
- 三田シティハウス
- 空室:1 部屋
- 面積:55.86㎡
東京メトロ南北線
『白金高輪駅』徒歩9分
間取り:1LDK
賃料:23.0万円
-
更新 05/22
- パークコート赤坂檜町ザ・タワー
- 空室:2 部屋
- 面積:66.37㎡〜125.79㎡
都営大江戸線
間取り:2LDK〜3LDK
賃料:75.0万円〜260.0万円
フェニックス新宿夏目坂は、若松河田駅から5分以内の駅近物件になります。
オートロック、防犯カメラ、24hセキュリティなどがあり、セキュリティ対策がなされているので女性の一人暮らしやお子さんがいる方でも安心快適に暮らせます。
<分譲賃貸サーチ>では豊富な経験と知識を活かし、お客様により良いライフスタイルをご提供しております。
内見や掲載されていない情報等については、<分譲賃貸サーチ>まで気軽にお問い合わせください。