都営大江戸線の賃貸物件一覧
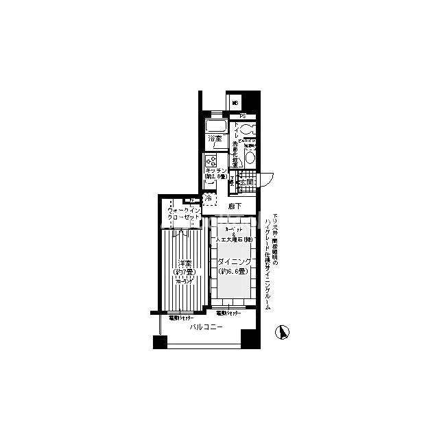
ハーモニーレジデンス浜松町 【05月20日更新】
お気に入りに追加しました
お気に入りを解除しました
検索条件を保存しました
会社情報
分譲賃貸サーチ
(株式会社エスティリンク)
営業時間:10:00~19:00
定休日:年中無休
おすすめの物件
-
更新 05/20
- フェイバリッチタワー品川
- 空室:2 部屋
- 面積:40.00㎡〜86.75㎡
JR山手線
間取り:1R〜3LDK
賃料:21.0万円〜38.0万円
-
更新 05/20
- ザ・パークハウス愛宕虎ノ門
- 空室:3 部屋
- 面積:54.80㎡〜64.52㎡
東京メトロ日比谷線
『神谷町駅』徒歩3分
間取り:1SLDK〜2LDK
賃料:40.0万円〜43.5万円
-
更新 05/20
- 三田シティハウス
- 空室:1 部屋
- 面積:55.86㎡
東京メトロ南北線
『白金高輪駅』徒歩9分
間取り:1LDK
賃料:23.0万円
-
更新 05/20
- パークコート赤坂檜町ザ・タワー
- 空室:2 部屋
- 面積:66.37㎡〜125.79㎡
都営大江戸線
間取り:2LDK〜3LDK
賃料:75.0万円〜260.0万円
-
更新 05/20
- プラウドタワー芝浦
- 空室:5 部屋
- 面積:40.27㎡〜85.73㎡
JR山手線
『田町駅』徒歩11分
間取り:1LDK〜3LDK
賃料:30.1万円〜65.0万円
